Prime Development Site For Sale | Great Moor Street, Bolton
Contact Us for Enquiries
Email: process@methodpm.com
This exceptional development site at 22-26 Great Moor Street, Bolton, presents a unique opportunity to shape the future of the town centre. Located within the Mawdsley Street/Nelson Square Conservation Area and Civic & Retail Core, this sizeable parcel of land is ideally situated between Mawdsley Street and Chancery Lane, surrounded by key landmarks such as St Peters Church, Bolton Interchange, and The Old School Rooms.
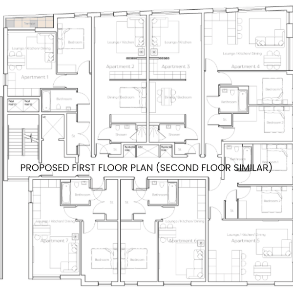
Currently used as a street-level car park, the site is primed for a significant development that complements the existing urban fabric. Envisioned as a mixed-use project with active commercial frontage at ground level and residential units above, the development will contribute to the vibrancy of the town centre.
This report, prepared for Bolton Council Planning Authority, provides a comprehensive assessment of the site's context, planning policies, and neighboring buildings. It explores potential development opportunities, taking into account the site's constraints and suggesting appropriate scale and massing based on existing precedents.







